Токарный станок с наклонной станиной KTL 65M/750
8 685 640 руб.
с НДС - на 26.04.2026 г.
| Модель: | ![]() |
KTL 65M/750 |
| Производитель: | КМТ |
|
| Изготовитель: | ![]() |
Китай |
Токарный станок с наклонной станиной KTL 65M/750 предназначен для получистовой и чистовой обработки различного вида деталей типа вал, диск, втулка. Станок позволяет выполнять основные операции механической обработки: точение наружных поверхностей, расточки отверстий, внутренних криволинейных поверхностей конической формы, обработка наружной и внутренней резьбы, дуг, разворачивания отверстий. Подходит для скоростной обработки черных и цветных металлов. Станки нашли широкое применение в автомобилестроении, приборостроении, изготовлении деталей электроники, аэрокосмической, военной и других отраслях промышленности. Станки обеспечивает высокую эффективность, большие объемы и высокую точность обработки.
Серия токарных станков с ЧПУ серии КTL применяются во всех отраслях машиностроительной индустрии, а также в авиационно-космической промышленности и приборостроении.
Отличительные особенности
- Токарные станки с ЧПУ серии KTL — это современные высокопроизводительные центра на наклонной станине с линейными направляющими качения.
- Цельнолитая чугунная станина выполнена под углом 30° и усилена ребрами жесткости. Такая конструкция обеспечивает высокую надежность, жесткость и виброустойчивость при работе.
- Линейные направляющие качения и ШВП THK (Япония) по осям X и Z обеспечивают высокую скорость и точность перемещений по осям.
- Телескопическая защита направляющих по осям X и Z.
- В стандартной комплектации установлен гидравлический 3-х кулачковый патрон 10” (ø250) с проходным отверстием 75 мм производства Auto Grip (Тайвань).
- 12-ти позиционная револьверная головка с внутренним подводом СОЖ обеспечивает высокую точность позиционирования, жесткость обработки. Подача СОЖ через револьверную головку позволяет снизить затраты на режущий инструмент.
- Модель KTL65M/750 оснащена приводной револьверной головкой на 12 позиций, тип крепления BMT65.
Конструктивные особенности
Для станины токарного центра применяется литая станина из модифицированного чугуна марки HT300. Компоновка внутренних частей станины усилена ребрами жесткости. Толщина стенок литья составляет 30 мм, увеличена масса станины в сравнении с аналогичными станками на 20 %.
По осям X и Z установлены линейные направляющие качения роликового типа производства THK (Япония), обеспечивающие высокую скорость и точность перемещения. Ширина линейных направляющих 35 мм, что гарантирует высокую жесткость, стойкость к вибрации и деформации при высоких скоростях перемещений.
На токарном центре KTL65/750 установлен главный двигатель повышенной мощности 15/18,5 кВт производства Fanuc (Япония). Передача крутящего момента с основного двигателя на шпиндель осуществляется за счет клино-ременной передачи, что значительно уменьшает шум при работе.Скорость вращения шпинделя регулируется бесступенчато, что обеспечивает высокую точность и шероховатость обработки. Станок оснащен шпинделем с полым гидроцилиндром для обработки прутков до Ø75 мм производства Auto Grip (Тайвань).
Технические характеристики KTL 65M/750 |
|
|---|---|
| Характеристика | Значение |
| Параметры обработки | |
| Максимальный диаметр устанавливаемой заготовки над станиной | ø 650 мм |
| Максимальный диаметр обработки | ø 380 мм |
| Максимальный диаметр обработки над суппортом | ø 380 мм |
| Максимальная длина обработки | 700 мм |
| Шпиндель | |
| Фланец шпинделя | A2-8 |
| Внутренний конус отверстия шпинделя | Metric 1:20 |
| Диаметр отверстия в шпинделе | ø 92 мм |
| Диаметр обрабатываемого прутка | ø 75 мм |
| Диаметр патрона | ø 250 (10”) мм |
| Максимальные обороты шпинделя | 3000 об/мин |
| Перемещения | |
| Перемещение по оси Х | 280 мм |
| Перемещение по оси Z | 820 мм |
| Ускоренные перемещения по осям X/Z | 24/24 мм/мин |
| Инструментальная система | |
| Количество инструмента в револьверной головке | 12шт. |
| Сечение инструмента | 25х25 мм x мм, ø 40 |
| Обороты приводного инструмента | 4500 об/мин |
| Мощность приводного инструмента | 3,7 кВт |
| Тип крепления приводных блоков | BMT 65 |
| Точность | |
| Точность позиционирования по осям X/Z | 0,008/0,010 мм |
| Повторяемость по осям X/Z | 0,005/0,008 мм |
| Мощность | |
| Мощность электродвигателя главного привода | 15/18,5 кВт |
| Давление помпы подачи СОЖ | 10 Бар |
| Задняя бабка | |
| Диаметр пиноли | ø 130 мм |
| Перемещение пиноли задней бабки | 130 мм |
| Конус пиноли задней бабки | МТ5 |
| Энергопотребление | |
| Напряжение сети | 380 ± 5% В |
| Частота тока | 50 Гц |
| Габаритные размеры | |
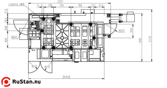
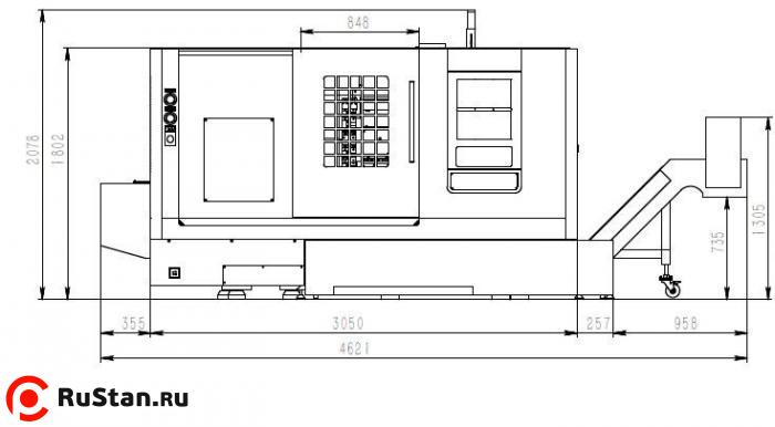
| Габаритные размеры (ДхШхВ) (без транспортера стружки) | 3365х1970х1800 мм |
| Масса KTL 65M/750 нетто | 5500 мм |
Стандартная комплектация
В стандартной комплектации установлен гидравлический 3-х кулачковый патрон 10” (ø250) с проходным отверстием производства Auto Grip (Тайвань). Максимальный диаметр обрабатываемого прутка ø75мм. В комплекте с патроном идет комплект мягких и каленых кулачков.
Промышленная система ЧПУ самая распространённая в России, более проста в использовании, легко найти операторов. Сервис по всей России, запасные части в наличии на складах. Для удобства оператора стойка снабжена маховиком ручного управления.
На станке KTL65M/750 установлена сервоприводная револьверная голова фирмы Sanhe (Китай) на 12 позиций с приводным инструментом, тип крепления – BMT65. Система крепления BMT имеет преимущество в жесткости крепления инструментальных блоков. Максимальные обороты – 4500 об/мин.
На станке установлена гидравлическая задняя бабка. Ход пиноли производится я за счет гидравлики. Установка задней бабки в рабочую позицию осуществляется вручную.
Современное LED освещение в положении сверху обеспечивает полное освещение рабочего пространства станка и контроля рабочей зоны в процессе эксплуатации.
Основная функция сигнальной лампы - цветовая визуализация состояния станка, удаленно сообщает работнику о состоянии станка.
Теплообменник обеспечивает охлаждение компонентов электрошкафа при работе оборудования в двух-трех сменном режиме. Компенсирует перепады температур в цехе, особенно при превышении температурных норм эксплуатации.
Автоматическая система смазки обеспечивает централизованную своевременную смазку по основным движущимся элементам – направляющим и ШВП, что сокращает их износ в разы.
Позволяет в разы сократить время наладки станка, обеспечивает перемещение рабочих органов станка по двум осям.
Электрошкаф полностью соответствует нормам СЕ, что указывает на соответствие продукции всем необходимым требованиям законодательства Европейского Союза. Основные компоненты установленной электроники принадлежат компании Fanuc и Siemens.
Эффективно удаляет стружку из зоны резания и позволяет работать на станке без остановок на обслуживание. С конвейером поставляется корзина для сбора стружки.
На станках сделана подготовка под установку системы измерения инструмента Renishaw. Позволяет в будущем установить систему измерения инструмента.
Комментарии и вопросы:
Комментариев пока нет, но ваш может быть первым.Разметить комментарий или вопрос
Отзывы о KTL 65M/750:
Отзывов пока нет, но ваш может быть первым.Похожие товары
Обозначение КМТ используется исключительно для идентификации товаров соответствующего производителя. ООО "Компания "РуСтан" не является правообладателем товарного знака КМТ и не аффилировано с правообладателем.






